Search Our Agents & Offices

Let us help you find an agent or office near you.

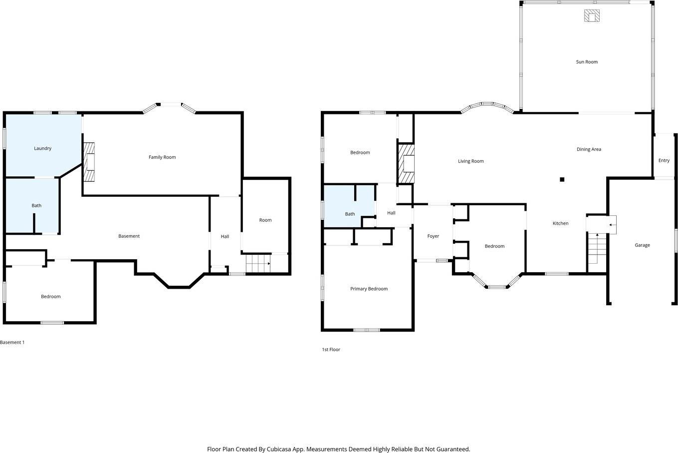
2519 29th Avenue Court Moline, IL 61265

  • $205,500 (sold: 3/27/2026)
  • 4 Beds
  • 2 Full Baths
  • 1,876 sq ft
  • Year Built: 1952
  • Residential
  • Listing #12576917
  • Status: Sold

Property Description

This well maintained 4BR/2Bath, 1 car attached ranch home tucked back along a wooded lot in the beautiful Crestwood Hills addition is a must see! With lots of open space on the main level, this home is perfect for entertaining. The 4 seasons porch at the rear of the home is the perfect place to relax and feel one with nature, surrounded by windows that provide scenic views and natural light. This room also features a wood burning stove, an extra breaker box (previously used for powering a hot tub) and a beautiful new composite deck/stairs off the back (installed 2025). The main level includes 3 bedrooms and a full bathroom, a kitchen that features an island/breakfast bar that opens to the large dining room and living room. The living room includes a cozy wood burning fireplace and a picturesque bay window with a wooded view. The partially finished basement includes a bonus room with cedar lined walls that would make an excellent office space, a large family room with an additional wood burning fireplace and a walk-out area to a large patio that on-looks the woods. The basement also features a 4th non-conforming bedroom, a full bathroom, large laundry room and plenty of additional storage space. Come check this beauty out before it's gone!

Listing Details

Price$205,500 (sold: 3/27/2026)
Bedrooms4 Beds
Bathrooms2 Full Baths
Year Built1952
Property TypeResidential
Listing #12576917
StatusSold
Listing TypeFor Sale

Interior Features

Square Feet1,876

Community Information for Moline, IL 61265

Demographics

  • Population Facts

    • Total Population
    • Population 5 Year Forecast
    • Population Density
    • Area Size
    • Median Population Age
    • Total Households
    • Average Household Size
    • Median Householder Age
    • Median Rent
  • Population by Age Range

  • Population by Sex

  • Population by Race

Education

  • Highest Education Level Completed

    Education - Current Enrollment

Income

  • Annual Household Income

    Daily Commute

  • Population Employment

  • Consumer Price Indexes

Safety

Safety in Moline, IL 61265

  • Crime Threat Index

Weather

  • Weather Facts

    • Daily Chance it's Sunny
    • Average Daily Sky Cover
    • Annual Days of Clear Sky
    • Annual Days of Rain
    • Annual Days of Snow
    • Annual Rain
    • Annual Snow

    Average Temperatures

  • Monthly Weather

Housing Stats

  • Housing Occupancy

  • Rural vs. Urban

Community overview information from Home Junction Inc.

Mortgage Calculator

Quickly estimate your monthly mortgage. If you would like a more detailed analysis of what you can afford, please inquire below.

Estimated taxes and insurance are not included. Sales price from MLS. Mortgage calculator source: NextHome, Inc.

286053

More Information Request

We use cookies to improve your experience.

By continuing to visit this website, you accept our use of cookies. Read our policy here.